Çok Ayrıcalıklı Özellikler, Harika Konum, Fırsat Daire
Ankara Çankaya’da, Aşağı Ayrancı Nazilli Sokakta (Hoşdere caddesine 20 metre mesafede) bulunan evimizin kullanışlı ve ayrıcalıklı özellikleri hakkında sizleri bilgilendirmek istiyoruz.
Fiyat: 640.000 (İlan fiyatı, en son emlak endeksi hesaplamalarına göre güncellenmiştir.)
Telefon: 0505-5067661
Güncel Emlak Endeksi ve İlan Fiyatı Hakkında: 25 Eylül 2021 tarihinde alınan emlak endeksinde dairemiz emlak endeksi, minimum 640, maksimum 690 bin liraydı. 12 Kasım 2021 tarihli son hesaplamaya göre ise minimum 650, maksimum 740 bin liradır. Güncel rapora göre evin tahmini değeri ise 690 bindir. Yine taban fiyatın altında olacak şekilde ilan fiyatımızı 630 bin yerine, 640 bin olarak güncelledik.
Sesli Anlatımlı Tanıtım Videosu:
Evimizin tüm detaylarını aktardığımız ve karar vermenize yardımcı olacak, sesli anlatımlı ev tanıtım videosunu mutlaka seyretmenizi tavsiye ediyoruz.
Ayrıca 39 adet fotoğrafın, Endeksa Emlak Endeksi Raporunun, Tapu Parsel Sorgulamasının ve daire üzerinde herhangi bir şerh, icra, ipotek vs. bulunmadığını ve kat mülkiyetli bir daire olduğunu gösteren tapu kaydının, evin tapusunun ve mimari projesinin yüklendiği Google Drive adresi aşağıdadır:
https://drive.google.com/drive/folders/1rFvo7R7o3Y-mhB1iMhvXIrvg6c_0OWnh?usp=sharing
Not: Dairemiz satış sonrası hemen boşaltılacaktır. (Mümkün olan en kısa zamanda, en fazla bir ay içinde)
İlan Adresi:
Fiyat: 640.000 Telefon: 0505-5067661
Dairemiz Hakkında Birinci Önemli Nokta: 2. katta ve ön cephede bulunan dairemiz “gerçek net” 120 m2’dir. Brüt:134 m2’dir. Oldukça geniş bir dairedir. (Lütfen bu genişlikteki dairelerin metrekaresinin, ilanlarda 140-150 m2 olarak gösterildiğine dikkat edin. Biz ne eksik ne fazla, gerçek metrekaresini yazıyoruz. Zaten gelince gözlerinizle göreceksiniz.)
İkinci Önemli Nokta: Endeksa emlak endeksi raporuna göre dairenin emlak endeksi minimum 650, maksimum 740 bin liradır. Bu şu demektir: Aynı özelliklerde ve yerdeki en bakımsız dairenin en düşük satış fiyatı 650, en yapılı dairenin ise 740 bin liradır. Biz bu taban fiyatın da altında olan bir fiyat belirledik: 640 bin.
Satış fiyatı üzerinden pazarlık payı normal şartlarda elbette vardır. Ancak satış fiyatını minimum 650 bin olan emlak endeksinin de altında belirlediğimiz için, 640 bin son fiyattır. Bu fiyatın altına inecek genişliğe sahip değiliz. Yoksa üçe-beşe bakan insanlar değiliz ama ihtiyacımız var. Biz bu fiyatın altına inmemeye karar verdik ailece. Size de evin kıymetini takdir edip (bütçeniz yetiyorsa) bize ulaşmak kalıyor.
Odalar bağımsızdır, salon 35 m2’dir. Isınma merkezidir, apartman görevlisi ve görüntülü diafon sistemi mevcuttur. Aidat 500 liradır. Bina ısı yalıtımı (mantolaması) yapılmıştır. Arkada devasa bir açık otoparkı mevcuttur. Dairenin iki kapalı ve bir açık olmak üzere, üç adet balkonu vardır. Dairemiz tabiat ve şehir manzaralıdır ve her cephesinden güneş almaktadır.
Mutfağı geniştir ve dolapları gayet iyi durumdadır. Banyo duşakabinli, çift alafranga tuvalet mevcuttur. Dış cephesi PVC ısıcamlı (pimapenli) dir. Maliye, Meclis ve Emniyete yakındır ve Kızılay’a 5-10 dakikalık mesafededir. Ayrancı’nın en mükemmel konumundadır. Ulaşım problemi yoktur. Aklınıza gelen her türlü ihtiyaçlarınıza cevap verecek tüm işletmelerin, okulların, eczane ve marketlerin, sağlık ocağı ve hastanelerin bir arada olduğu ve bir site konforundan çok daha fazlasını bulacağınız çok ayrıcalıklı bir yerdedir.
Bina yönetiminin iyi çalışmasıyla, binanın tüm eksiklikleri tamamlanmıştır ve bölgenin en düzenli binalarından biri haline gelmiştir.
Kentsel dönüşüm projesi söz konusu olduğu takdirde ise, arsa payı olarak en geniş m2’ye sahip binalar arasında bulunması büyük bir avantajdır. Fakat şu an böyle bir durum söz konusu değildir.
Dairenin 45 senelik bir daire olduğu göz önüne alındığında elbette bakıma ihtiyacı vardır. Bir emekli albayın evidir. Parkeler ve marleyler zamanla yıpranmış ve eskimiştir. Boyaya ihtiyacı vardır. Gömme dolapların bir marangoz tarafından elden geçirilmesi gereklidir. Ancak oturulabilir durumdadır. Dairenin içinde yeni ve eski ve işe yarar durumda ciddi bir eşya vardır. Eşyalı olarak satın alınmak istenirse 20 bin fiyat farkıyla eşyalı olarak da verilebilir. Tercih alana aittir. Sesli anlatımlı tanıtım videosuna ulaşıp izlemenizi bu yöndeki kararınıza yardımcı olması için tavsiye ediyoruz.
Fiyatın iki taraf için de adil olduğu kanaatindeyiz. Alacak kişiye şimdiden hayırlı olsun diyoruz ve çok memnun kalacağına inanıyoruz.
Dairenin Net Oturum Alanı:
120 m2’dir. (Kendi ölçümümdür. Balkonlar dahildir.) Belediye kayıtlarındaki mimari projede ise brüt 134 m2 ve net 115 m2 göründüğünü öğrendik. Bu fark ise, balkonları net kullanım alanına dahil etmemizden kaynaklanıyor. Zaten iki balkon da kapalı olduğundan, bunların kullanım alanına dahil edilmesi uygundur.
Bazı emlakçıların bu genişlikte bir daireyi 140-150 m2 olarak ilanda gösterdiklerini lütfen hesaba katın. Bu dairenin “gerçek net metrekaresi” 120m2 dir!
Salon ise tam 35 m2’dir.
Odaların Ölçüm Değerleri:
Oturma Odası: 2.95*5.00=14.75 m2
Oturma Odası Balkonu: 1.50*2.80=4.2 m2
L Salon: (6.50*4.50)+(2.95*1.90)= 29.25+5.6=34.85 m2
Salon Balkonu: 4.80*1.00=4.8 m2
Soldaki Yatak Odası: 3.40*3.00=10.2 m2
Mutfak: 2.45*5.20=12.74 m2
Mutfak Balkonu: 4.70*1.00=4.7 m2
Sağdaki Yatak Odası: 2.90*5.20=15.08 m2
Banyo: 2.60*1.90=4.94 m2
Tuvalet: 1.60*1.30=2.08 m2
Kapı Girişi (Antre): 2.30*3.10=7.13 m2
Tuvalet Önündeki Hol: 2.60*1.00=2.6 m2
Mutfak Önündeki Hol: 1.10*1.40=1.54 m2
Oturma Odası Gömme Dolap: Genişlik 0.65 Derinlik 0.55 Yükseklik 2.15 0.35 m2
Banyo Önü Gömme Dolap: Genişlik 0.90 Derinlik 0.65 Yükseklik 2.50 0.58 m2
Dairenin Bazı Özellikleri:
Batı-kuzey cepheli ve bahçelidir. Beyaz eşya, duşakabin, Dolaplı Mutfak, Setüstü Ocak, Bulaşık Makinesi, Çamaşır Makinesi, Fiber İnternet, PVC Doğrama, vestiyer, kiler, Gömme Dolap, ısıcam, mobilya, pancur, çelik kapı, Görüntülü Diafon, Parke Zemin, termosifon, açık otopark, Kamera Sistemi, Apartman Görevlisi mevcuttur. Isınma merkezi sistemdir ve aidatı 500 liradır.
Etrafında Alışveriş Merkezi, Cami, Eczane, Hastane, İlkokul-Ortaokul, Lise, Market, Park, Polis Merkezi, Sağlık Ocağı ve Semt Pazarı vardır.
Ciddî Alıcılar İçin Önemli Bilgilendirme: Satış fiyatı doğru olarak bildirilecek ve tapu harcı eksiksiz olarak ödenecektir. (Tapu harcı 600 bin için toplam 24.000 liradır) Satış, güvenli satış yöntemiyle, her iki tarafın bilgi ve kontrolü dahilinde Tapu Müdürlüğünün iştirakiyle verilen ve her iki tarafın güvenli alım-satım yapmasını sağlayan bir hizmet olan Tapu Takas Hizmeti ile gerçekleştirilecektir. (https://www.takasbank.com.tr) Bu sistemi kullanmanın maliyeti her iki taraf için de ayrı ayrı 70 liradır. Mevcut güvenli satış yöntemleri içinde en makul ücretlisidir.
Acaba Belirlenen Satış Fiyatı, Gerçek Emlak Değerine Ne Kadar Uygundur? Buyrun Cevabı Aşağıda.
Not: Emlak endeksi raporlarının gerçek piyasa değerini yansıtmadığını ve evin değerinin daha düşük olduğunu söyleyenlere cevabımız: Bir alt kattaki aynı metrekaredeki daire 630 bin liraya satılmıştır. (Üzerinden 1 ay bile geçmedi.)
Dairemizin, Endeksa Emlak Endeksine Göre Alınan Raporla Belirlenen Satış Fiyatı:
Kendiniz de emlak endeksinin doğruluğunu endeksadan teyit edebilirsiniz. Evin bulunduğu konum (Nazilli Sokak) ve evin temel özelliklerini girdiğimizde gelen satış fiyatı raporunda minimum 650.000, maksimum 740.000 TL olarak çıkıyor dairemizin satış fiyatı. Emlak 360 sayfasında ise evin bulduğu bölgede ortalama satış fiyatı 600.000 lira çıkmıştı. Evin sahip olduğu ekstra özellikleri (bulunduğu emsalsiz konum, devasa otopark, her taraftan manzaralı, üç balkonlu ve güneş alan ön cephede ve ikinci katta olmasını) hesaba kattığınızda, emlak endeksinin taban fiyatının da altında satın alma fırsatı olduğu açıkça ortada.
Şunu da önemle belirtelim: Evimizin konumu çok iyi bir yerde olduğundan, satış fiyatı da bu şekilde çıkmaktadır. Örneğin yine Ayrancıda aynı özellikte fakat Tirebolu sokakta bulunan bir dairenin emlak endeksi ise çok daha düşük çıkmaktadır. Dolayısıyla evimizin bulunduğu konumun ne kadar ayrıcalıklı bir yer olduğu bilinmeden, belirlenen fiyatın ne derece uygun olduğunun anlaşılması da mümkün değildir. Evimiz Ayrancının tam merkezinde, Hoşdere caddesinin yanıbaşındadır. Bu evde olmanız demek, her yerin elinizin, ayağınızın altında olması demektir. Etrafı şöyle bir dolaşmanız, site konforundan çok daha fazlasının bu mahallede olduğunu hemen fark etmenize yetecektir.
Evin Tadilat Masrafıyla İlgili Gerçekçi Açıklamalar ve Alınan Fiyat Teklifi
Öncelikle şunu belirtmeliyiz ki, evin bakıma ihtiyacı olduğunu elbette kabul ediyoruz. Ancak unutulmaması gereken bir nokta, aynı yaşta ve aynı konumdaki en bakımsız dairenin minimum satış fiyatının (emlak endeksinin) 650 bin olduğudur ve alınan emlak endeksi raporuyla sabittir. (Endeksa.com)
Dolayısıyla alıcıların fiyat kırmak maksadıyla evin 100-150-200 bin liralık masrafının olduğunu söylemeleri hiç uygun düşmüyor! Ne kadar masrafa ihtiyacı olursa olsun ve bu ne kadar tutarsa tutsun, madem ki minimum satış fiyatı olan 650 binin de altında yani 640 bin olarak fiyatı belirlemişiz. O halde bu fiyatın yüksek olduğu iddia edilemez.
Diğer taraftan ifade edilen tutarların ne derece gerçekçi olduğunu görebilmek için Hoşdere’de bulunan ve normalde pek de ucuza iş yapmayan Okyanus Mobilya’dan evin tamamının tadilatı için fiyat çıkarmalarını istedik.
Ortaya çıkan tablo şu: Evin tamamı 75 bin liraya yapılabiliyor! Ayrıca sadece zaruri olan tadilatı yaptırayım derseniz 35-45 lira arasına (yani 50 bin bile değil!) bu tadilatı yaptırabiliyorsunuz.
Yani “ben mutfağı aynen bırakayım, zaten iyi durumda, hem fayansları hem dolapları değiştirmeye gerek yok derseniz. Her iki tuvalet ve duşakabin zaten yeni ve iyi durumda. Bunlara da gerek yok.” derseniz 35-45 bin liraya işi halledebiliyorsunuz. (ki öyle zaten)
Şimdi birisi demiş, bir mutfak 50 bin liraya yapılıyor! Biz de diyoruz ki: Hayır efendim! Gayet güzel, modern ve yeni bir mutfak var ki sadece 13.500 liraya yaptırılıyor. Mermer tezgahı da 4000 lira. Siz de gidip 50 bin liralık mutfak yaptırmayın! Şart mı yani! Yaptıracaksanız da sizin tercihiniz ama sizin keyfî tadilat masrafınızı biz karşılamak zorunda değiliz! Bu tercihinizi evin fiyatını kırmak için öne sürmek gibi yakışıksız bir davranışta bulunmayın lütfen!
Okyanus mobilyadan alınan fiyat teklifi aşağıdadır. Biz kendilerine referans oluyoruz. İşlerini iyi ve özenli yapan bir firma. Evi alırsanız sizi onlara yönlendiririz.
Mutfak dolabı 13500 TL
tezgahı 4000 TL
evin komple boyası 6.000 TL
panel kapı adet 1500 TL (10*1500=15000 lira)
lake kapı adet 2000 TL
parke metrekaresi 80 TL (100*80=8000 lira fakat 35 m2 lik salona parkelere sadece silistre yaptırarak işi daha ucuza getirebilirsiniz.)
mutfak banyo tuvalet Seramik banyo dolabı duşakabin klozet 28.000 TL (Bunları böyle saymışlar ama dediğimiz gibi, zaten iki tuvalet, duşakabin ve mutfak tezgah üstü fayansları çok iyi durumda. Yani bu fiyatın en az 15 bin lirası zaruri olmayan harcama. Bu miktarı teyid ettik.)
Batarya ve musluklar elektrik düğme ve prizler vanalar 5.000 TL (Bu fiyatın içinde su borularının degisimi dahil degil. Eğer yaptirilmak istenirse bu da kabaca 5-10 bin tutuyormuş.)
İşte Okyanus Mobilya’dan 13.500 lira olarak fiyat teklifini aldığımız mutfak dolabının örnek fotoğrafı aşağıda. Ankastre set için ilave 5500 lira ödenmesi gerekiyormuş ve karşıda yukarıda da dolapları mevcutmuş bu mutfağın. Hani mutfak 50 bin liraya yapılıyordu!? Bunu beğenmeyen ilave masrafı bize yıkmaya çalışamaz ve evin fiyatını bu sebeple düşüremez! Olacak iş mi bu!?
Evimizle İlgili Bazı Sorulara Cevaplar
“Bu kadar mükemmel konumda bulunan bir evi niye satıyorsunuz?”
Cevabım: Ailece Samsun’a yerleşmeye karar verdik ve Samsun’dan bir daire aldık. Bu nedenle Ankara’daki evimizi satmaya karar verdik.
“Odalar bağımlı mı?”
Hayır. Tüm odalar, mutfak ve salon birbirinden bağımsızdır.
“Satış fiyatına tapu masrafları dahil mi?”
Tapu masrafları (harcı) alıcı tarafından ödenecektir. Pratikte genel âdet böyledir. Satış fiyatı üzerinden pazarlık payı normal şartlarda elbette vardır. Ancak satış fiyatını minimum 650 bin olan emlak endeksinin de altında belirlediğimiz için, 640 bin son fiyattır. (Resmiyette tapu harcı, alıcı ve satıcıya yarı yarıya pay edilir fakat bunu 650 bin olan satış fiyatının, bize düşen tapu masrafını satıcının bizim yerimize ödemesiyle 640 bine düşürülmesi olarak algılayın lütfen. Bu dairenin minimum emlak endeksinin 650 bin olduğunu lütfen hatırlayın.)
Güvenli emlak alış-satış yöntemi olan Takasbank sisteminin işlem adımlarını öğrendim ve daha önce aynı sistemde bir daire alımı gerçekleştirdim. Kimsenin yardımı olmadan, her iki tarafın bilgi ve kontrolü dahilinde satışı gerçekleştirebilecek bilgiye sahibim. Bana müracaat etmeniz yeterli.
“Ev kentsel dönüşüme girer mi?”
Böyle bir durum yok. Apartman oldukça bakımlı. Böyle bir şey ancak müşterek kararla olur. Hem olsa, şu anki değerinden çok daha fazla kıymet kazanır.
“Bina kaç yaşında ve daire net kaç m2?”
Tapu bilgilerinde, yönetim planı tarihi 1974 yılı yazılı. Binanın 45 yaşında olduğunu söyleyebiliriz.
Dikmen ve Mutlu Mahallesini (Güya) Emsal Gösterenlere Cevaptır:
Biri de dalga mı geçiyorsunuz diye Dikmen’den bahsedip güya örnek vermiş! O zaman Dikmen’de oturun ve oradan alın evinizi! Ayrancı’da ne işiniz var?! Bakın bu tercih meselesidir. Ben de hastalık sebebiyle emekli olmak ve maaşımın yarıya düşmesi söz konusu olduğunda “Ayrancı’da böyle bir evde oturmak zorunda değilim. (Bu satılık olan ev değil, sattığım 3+1 kendi evim) Dikmen’de ev fiyatları yarı fiyatına. Hem 2+1 evde kalabilirim.” demiştim ve bunu da uyguladım. Şimdi bakınız Emlak 360 sayfasında evimizin bulunduğu Güvenevler mahallesinde ortalama satış fiyatı 600 bin çıkarken, Dikmen’in en iyi mahallesi ve Ayrancıya komşu olan Harbiye mahallesinde ortalama satış fiyatı ne çıkıyor: 354 bin! Bunun üzerine daha söylenecek bir şey var mı? Evin fiyatını yüksek bulanlar başka yerden ev baksınlar ve bizi de rahatsız etmesinler, çok rica ediyoruz!
Birisi Mutlu mahallesinden bahsetmiş ve güya Ayrancı semtiyle kıyaslamış! Kızılay’a 5 dk. mesafedeki Ayrancı’yı Mamak’la kıyaslamak ne kadar akıl işidir! Mutlu mahallesi Mamak’ta ve Emlak360 sitesi emlak endeksine göre bizim evimizin bulunduğu yerdeki ortalama satış fiyatı 600 bin, Mutlu mahallesinde ise ortalama satış fiyatı 313 bin. Tercih meselesidir elbette. O semtte emlak endeksinin bu kadar düşük olmasının ve evimizin bulunduğu yerde bu kadar yüksek olmasının gayet kuvvetli ve mantıklı sebepleri vardır elbette. Bu ekspertiz raporları gayet ince eleklerle ve birçok kriter göz önüne alınarak hesaplanıyor. Dileyen her iki semti de gezip dolaşsın, aradaki farkı kendi gözüyle görsün! Tavsiye ederiz.
ENDEKSA EMLAK ENDEKSİ RAPORU
(Fotoğrafların üzerine tıklayarak büyütebilirsiniz.)
TAPU PARSEL SORGULAMASI
DAİRE ÜZERİNDE HERHANGİ BİR ŞERH, İCRA, İPOTEK VS. BULUNMADIĞINI VE KAT MÜLKİYETLİ BİR DAİRE OLDUĞUNU GÖSTEREN TAPU KAYDI
Annem Ayrancı Ev Tapu Kaydı (Buraya Tıklayabilirsiniz.)
EVİN TAPUSU
Ev annem ve teyzemin ortak mülküdür ve iki ortaklıdır. (Aşağıdaki intikalden sonraki güncel tapudur.)
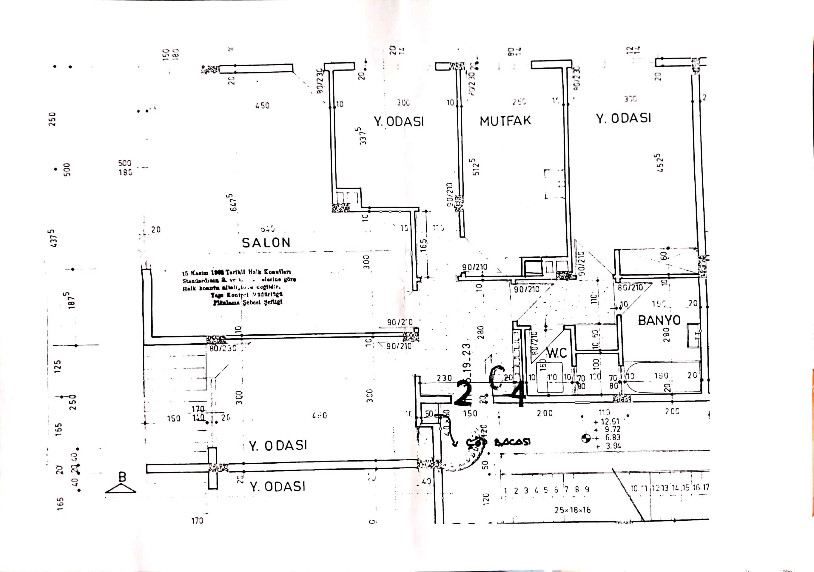
EVİN BELEDİYEDEN ALINAN MİMARİ PROJESİ
Evin metrekaresi ve sattığımız dairenin 2. katta sola dönünce sağdaki daire yani 15 no olduğunun teyidi, Çankaya Belediyesi İmar bölümünden yapılabilir.Biz aynen teyid ettik. Brüt 134 ve net 115 m2 olarak kayıtlıdır. Balkonların kısmen dahil edilmesiyle ve bizim ölçümümüzle 120 m2’dir.
EV FOTOĞRAFLARI
(Fotoğrafların üzerine tıklayarak slayt görünümüne geçebilir ve daha büyük olarak görüntüleyebilirsiniz.)













































